加气板材设备
轻质复合墙板机
发布时间:2018-11-02 来源:
产品介绍:
一、特点及用途
本机器由可编程控制的机电液压一体化专用液压成型机,随机配各种规格的模具,生产轻质复合墙板。基于轻质高强、保温隔热、隔声防火等性能的综合要求,以目前先进的具有轻质高强、稳定性好的无石棉纤维水泥板为外部结构面板,以取苯乙烯颗粒轻混凝土为芯材的节能环保新型实心轻质复合墙板。通过系统深入的研究,进一步优化条型墙的复合结构和拼接构造、面板和芯材的配比以及制备工艺参数,提高复合条型墙板的力学、热工、隔声、防火和耐久性能。是目前国际上最具有发展前景的新型墙体材料。
二、设备的组成及功能
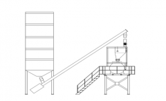
1、设备组成:由搅拌机、注浆机、墙板成型机、脱模翻转台、液压系统、电气系统等六部分组成。
1.1搅拌机由水泥仓,计量系统,搅拌机,搅拌楼等部份组成,对原材料进行计量和搅拌。(如下图)
2.2注浆机由移动小车,储料灌,液压系统等部份组成,将搅拌好的料浆注入到模具中。(如下图)
2.3墙板成型机由机架,固定板,中间板,活动板,液压系统等部分组成,对模具进行装夹固定。(如下图)
2.4脱模翻转台由移动机架,翻转平台,液压系统等部分组成,将成形后的墙板进行脱模。(如下图)
2.5液压系统由液压站,管道及油缸等部分组成,所有均采用国内外知名品牌,其性能可靠,控制准确。液压站由油箱,电机高压泵组,集成阀块组,冷却器及进回油过滤器组成,同时油箱上设有测温及液位计及滤芯报警堵塞装置,当滤芯堵塞时报警装置通知更换滤芯。
三、机器布置、检查、安装及准备
本机器安装平面布置应根据生产场地、制品工艺要求确定,原则上要求搅拌、移动注浆、墙板成型、脱模翻转、养护周转互不干扰,建议按安装基础图布置。
设备安装之前,安装和操作人员应认真阅读有关资料,做好安装计划和必要的准备工作。根据基础图核对基础尺寸,其中各部分平面的水平度应符合图纸要求,基础面应采用水泥浇筑。
注意:预埋件和导轨位置要准确、牢固,基础要符合设计要求,达到允许的安装强度。
四、生产工艺流程
将原材料的不同要求的配比进行计量然后放置搅拌机中搅拌,同时注浆机移动到搅拌楼下方等待,存料。墙板成型机装备好模具,注浆机沿导轨移动到墙板成型机侧面对墙板成型机进行注浆,注浆完成墙板成型机静养。脱模翻转平台移动至成型机另一侧面,对产品进行脱模,翻转平台旋转90度立起,叉车移动到翻转平台后面将墙板叉走,至此完成一个工作循环。
1、制板的整个生产过程流程
清理模具→喷脱模剂→安装模具→浇注→整形(适当加温)→恒温蒸养→降温→开模→出模→检验→入库
2、流程图详解
2.1清理模具:主要清理表面的水泥块,异物等,使模具的表面清洁无杂物,整体平整度高,清理时要注意不留死角。
2.2喷脱膜剂:喷时要量少均匀,脱膜剂量过大影响墙板的表面质量,主要是气孔,脱膜剂干燥后容易形成污垢,要定期清除以保证产品质量。
2.3合模:板芯装完后要合模,合模一定要到位,合模后对板间距逐一测量,这是保证板厚的必要手段,而且要保证前模正好卡在限位槽中。
2.4配料搅拌:严格按照配比工艺,各种料的误差不得超过2%,搅拌前搅拌机应先浇水湿润,搅拌稠度要适中。
2.5浇注:板的浇注要分次均匀浇注,浇注时要特别注意振捣,自动振捣也要设定分次振捣。
2.6整形:浇筑后上边要整形处理,收口一定要平整不允许有个别突出点,整形后亚光,尺寸误差要小于2mm。
2.7恒温蒸养:升温时注意速度控制在25℃/小时,最高温度控制在40-50℃蒸养时覆盖保温被,以防出现裂痕,升温及恒温蒸养150分钟。
2.8降温、开模、出模:要降温后开模,板的开模温度与环境温度的温差不应大于20℃,出模时吊装过程中要加强对墙板端头的保护,防止因吊装而损坏端头,对轻缺陷且能补救的要采取措施,以提高产品的质量档次。
2.9检验入库:对于出模后的墙板要警醒检验并加注标示,按质量等级分类入库。
五、产品调试
1、搅拌机
1.1开机前准备,检查各坚固件是否松动(尤其是传动电机螺栓)
1.2检查各电气线路及电器信号是否灵敏可靠。(特别是计量称的传感器)
1.3关闭空压机的进气阀和压风管道的闸阀,然后起动机器;此时应注意听机器运转的声音是否正常,若发现异常应立即停机检查;若无异常,此时应慢慢打开空压机的进气阀让机器正常工作,此时应注意:
(1)听机器声音是否正常;
(2)机器压力表的上升情况;
(3)机油的观察孔是否上油;
(4)机器的安全阀和储气罐的安全阀是否正常工作。
1.4开机之前一定要先关闭计量和搅拌机的出料口。
2、注浆机
2.1开机前准备,检查各坚固件是否松动。各运转部分及移动面有无障碍物,限位装置及安全防护装置是否完善。
2.2检查液压系统范围内,所用开泵阀门是否打开,开泵后检查每种自动装置是否达到规定值,是否动作达到技术及完全检测要求,检查系统压力升至电接点压力表上限时能否自动停取。
2.3遇到失压时,禁止所有缸体动作,然后按关液规程进行关液,处理相关故障。遇到停电时,应关闭所有阀门。
2.4对转动行走部位进行润滑。
2.5检查电机路线是否正常。
3、墙板成型机
3.1开机前准备,检查各坚固件是否松动。各运转部分及移动面有无障碍物,限位装置及安全防护装置是否完善。
3.2查液压系统范围内,所用开泵阀门是否打开,开泵后检查每种自动装置是否达到规定值,是否动作达到技术及完全检测要求,检查系统压力升至电接点压力表上限时能否自动停取。
3.3检查电机路线是否正常。
3.4遇到失压时,禁止所有缸体动作,然后按关液规程进行关液,处理相关故障。遇到停电时,应关闭所有阀门。
4、脱模翻转平台
4.1开机前准备,检查各坚固件是否松动。各运转部分及滑动面有无障碍物,限位装置及安全防护装置是否完善。
4.2查液压系统范围内,所用开泵阀门是否打开,开泵后检查每种自动装置是否达到规定值,是否动作达到技术及完全检测要求,检查系统压力升至电接点压力表上限时能否自动停取。
4.3对转动行走部位进行润滑.
4.4检查电机路线是否正常。
4.5翻转平台翻转时不允许站人在后面。遇到失压时,禁止所有缸体动作,然后按关液规程进行关液,处理相关故障。遇到停电时,应关闭所有阀门。
六、生产原材料参考配合比
参考数据:单块板各种材料的重量比为:水泥54.77% ,发泡颗粒0.53%,水44.62%,胶粉0.08%
七、保养及检查
1、定期对空压机检查及保养事项
1.1勤看各指示仪表,如压力表、油位、压力控制器。
1.2勤听机器运转的声音,如气阀、活塞、曲轴、轴承等部位。
1.3勤摸各部位,察觉空压机的温度变化和振动情况,如曲轴箱、中冷器、气缸、排气管的温度及振动情况,及早发现不正常的温升和机件的紧固情况,一定要注意安全。
1.4储气之罐之泄水阀每日打开一次排除油水。
1.5活塞空压机维修保养基本规程,操作和维修人员一定要做好相应的运行记录,即使出现故障,也便于判断和采取措施。
2、定期对液压系统检查及保养事项
2.1液压站要经常检查液压油的使用情况,重要是保证液压站的工作环境洁净,不要任何赃物进入液压系统内。如果发现油液变质,应立即更换新油。通常,液压站的油液,要定期过滤,更换。一般半年过滤一次。特别注意:新油并不是真正干净的油。因为扎油的油桶一般很少清洗,装装油时用的抽油器上,也可能有赃物。这样即使是新油也被污染。所以,要求注入油箱的油一定要经过过滤。若条件许可,用户可以添置一台滤油器。可与设计单位联系或通过过滤精度为100目的的滤油器
2.2液压站调整后,在使用中或停止状态,任何人员都不得随意拧动各有关阀件的手柄,以确保提升机的正常使用。
2.3各电磁换向阀接线时,应严格按规定的电压和电流值进行配接,并通过操作台上的相应开关反复操作几次,检查动作的灵活性,正确性,可靠性。
2.4安全制动装置上的各阀,应定期检查各个螺钉的链接情况。
2.5检查电磁换向阀的动作情况。
3、定期对转动轴承及摩擦部位润滑均为润滑脂手动润滑方式,用ZG-2或ZG-3钙基润滑脂。
4、勤检查整个机器的工作情况是否正常,发现问题及时解决。
本机器由可编程控制的机电液压一体化专用液压成型机,随机配各种规格的模具,生产轻质复合墙板。基于轻质高强、保温隔热、隔声防火等性能的综合要求,以目前先进的具有轻质高强、稳定性好的无石棉纤维水泥板为外部结构面板,以取苯乙烯颗粒轻混凝土为芯材的节能环保新型实心轻质复合墙板。通过系统深入的研究,进一步优化条型墙的复合结构和拼接构造、面板和芯材的配比以及制备工艺参数,提高复合条型墙板的力学、热工、隔声、防火和耐久性能。是目前国际上最具有发展前景的新型墙体材料。
二、设备的组成及功能
1、设备组成:由搅拌机、注浆机、墙板成型机、脱模翻转台、液压系统、电气系统等六部分组成。
1.1搅拌机由水泥仓,计量系统,搅拌机,搅拌楼等部份组成,对原材料进行计量和搅拌。(如下图)
2.2注浆机由移动小车,储料灌,液压系统等部份组成,将搅拌好的料浆注入到模具中。(如下图)
2.3墙板成型机由机架,固定板,中间板,活动板,液压系统等部分组成,对模具进行装夹固定。(如下图)
2.4脱模翻转台由移动机架,翻转平台,液压系统等部分组成,将成形后的墙板进行脱模。(如下图)
2.5液压系统由液压站,管道及油缸等部分组成,所有均采用国内外知名品牌,其性能可靠,控制准确。液压站由油箱,电机高压泵组,集成阀块组,冷却器及进回油过滤器组成,同时油箱上设有测温及液位计及滤芯报警堵塞装置,当滤芯堵塞时报警装置通知更换滤芯。
三、机器布置、检查、安装及准备
本机器安装平面布置应根据生产场地、制品工艺要求确定,原则上要求搅拌、移动注浆、墙板成型、脱模翻转、养护周转互不干扰,建议按安装基础图布置。
设备安装之前,安装和操作人员应认真阅读有关资料,做好安装计划和必要的准备工作。根据基础图核对基础尺寸,其中各部分平面的水平度应符合图纸要求,基础面应采用水泥浇筑。
注意:预埋件和导轨位置要准确、牢固,基础要符合设计要求,达到允许的安装强度。
四、生产工艺流程
将原材料的不同要求的配比进行计量然后放置搅拌机中搅拌,同时注浆机移动到搅拌楼下方等待,存料。墙板成型机装备好模具,注浆机沿导轨移动到墙板成型机侧面对墙板成型机进行注浆,注浆完成墙板成型机静养。脱模翻转平台移动至成型机另一侧面,对产品进行脱模,翻转平台旋转90度立起,叉车移动到翻转平台后面将墙板叉走,至此完成一个工作循环。
1、制板的整个生产过程流程
清理模具→喷脱模剂→安装模具→浇注→整形(适当加温)→恒温蒸养→降温→开模→出模→检验→入库
2、流程图详解
2.1清理模具:主要清理表面的水泥块,异物等,使模具的表面清洁无杂物,整体平整度高,清理时要注意不留死角。
2.2喷脱膜剂:喷时要量少均匀,脱膜剂量过大影响墙板的表面质量,主要是气孔,脱膜剂干燥后容易形成污垢,要定期清除以保证产品质量。
2.3合模:板芯装完后要合模,合模一定要到位,合模后对板间距逐一测量,这是保证板厚的必要手段,而且要保证前模正好卡在限位槽中。
2.4配料搅拌:严格按照配比工艺,各种料的误差不得超过2%,搅拌前搅拌机应先浇水湿润,搅拌稠度要适中。
2.5浇注:板的浇注要分次均匀浇注,浇注时要特别注意振捣,自动振捣也要设定分次振捣。
2.6整形:浇筑后上边要整形处理,收口一定要平整不允许有个别突出点,整形后亚光,尺寸误差要小于2mm。
2.7恒温蒸养:升温时注意速度控制在25℃/小时,最高温度控制在40-50℃蒸养时覆盖保温被,以防出现裂痕,升温及恒温蒸养150分钟。
2.8降温、开模、出模:要降温后开模,板的开模温度与环境温度的温差不应大于20℃,出模时吊装过程中要加强对墙板端头的保护,防止因吊装而损坏端头,对轻缺陷且能补救的要采取措施,以提高产品的质量档次。
2.9检验入库:对于出模后的墙板要警醒检验并加注标示,按质量等级分类入库。
五、产品调试
1、搅拌机
1.1开机前准备,检查各坚固件是否松动(尤其是传动电机螺栓)
1.2检查各电气线路及电器信号是否灵敏可靠。(特别是计量称的传感器)
1.3关闭空压机的进气阀和压风管道的闸阀,然后起动机器;此时应注意听机器运转的声音是否正常,若发现异常应立即停机检查;若无异常,此时应慢慢打开空压机的进气阀让机器正常工作,此时应注意:
(1)听机器声音是否正常;
(2)机器压力表的上升情况;
(3)机油的观察孔是否上油;
(4)机器的安全阀和储气罐的安全阀是否正常工作。
1.4开机之前一定要先关闭计量和搅拌机的出料口。
2、注浆机
2.1开机前准备,检查各坚固件是否松动。各运转部分及移动面有无障碍物,限位装置及安全防护装置是否完善。
2.2检查液压系统范围内,所用开泵阀门是否打开,开泵后检查每种自动装置是否达到规定值,是否动作达到技术及完全检测要求,检查系统压力升至电接点压力表上限时能否自动停取。
2.3遇到失压时,禁止所有缸体动作,然后按关液规程进行关液,处理相关故障。遇到停电时,应关闭所有阀门。
2.4对转动行走部位进行润滑。
2.5检查电机路线是否正常。
3、墙板成型机
3.1开机前准备,检查各坚固件是否松动。各运转部分及移动面有无障碍物,限位装置及安全防护装置是否完善。
3.2查液压系统范围内,所用开泵阀门是否打开,开泵后检查每种自动装置是否达到规定值,是否动作达到技术及完全检测要求,检查系统压力升至电接点压力表上限时能否自动停取。
3.3检查电机路线是否正常。
3.4遇到失压时,禁止所有缸体动作,然后按关液规程进行关液,处理相关故障。遇到停电时,应关闭所有阀门。
4、脱模翻转平台
4.1开机前准备,检查各坚固件是否松动。各运转部分及滑动面有无障碍物,限位装置及安全防护装置是否完善。
4.2查液压系统范围内,所用开泵阀门是否打开,开泵后检查每种自动装置是否达到规定值,是否动作达到技术及完全检测要求,检查系统压力升至电接点压力表上限时能否自动停取。
4.3对转动行走部位进行润滑.
4.4检查电机路线是否正常。
4.5翻转平台翻转时不允许站人在后面。遇到失压时,禁止所有缸体动作,然后按关液规程进行关液,处理相关故障。遇到停电时,应关闭所有阀门。
六、生产原材料参考配合比
参考数据:单块板各种材料的重量比为:水泥54.77% ,发泡颗粒0.53%,水44.62%,胶粉0.08%
七、保养及检查
1、定期对空压机检查及保养事项
1.1勤看各指示仪表,如压力表、油位、压力控制器。
1.2勤听机器运转的声音,如气阀、活塞、曲轴、轴承等部位。
1.3勤摸各部位,察觉空压机的温度变化和振动情况,如曲轴箱、中冷器、气缸、排气管的温度及振动情况,及早发现不正常的温升和机件的紧固情况,一定要注意安全。
1.4储气之罐之泄水阀每日打开一次排除油水。
1.5活塞空压机维修保养基本规程,操作和维修人员一定要做好相应的运行记录,即使出现故障,也便于判断和采取措施。
2、定期对液压系统检查及保养事项
2.1液压站要经常检查液压油的使用情况,重要是保证液压站的工作环境洁净,不要任何赃物进入液压系统内。如果发现油液变质,应立即更换新油。通常,液压站的油液,要定期过滤,更换。一般半年过滤一次。特别注意:新油并不是真正干净的油。因为扎油的油桶一般很少清洗,装装油时用的抽油器上,也可能有赃物。这样即使是新油也被污染。所以,要求注入油箱的油一定要经过过滤。若条件许可,用户可以添置一台滤油器。可与设计单位联系或通过过滤精度为100目的的滤油器
2.2液压站调整后,在使用中或停止状态,任何人员都不得随意拧动各有关阀件的手柄,以确保提升机的正常使用。
2.3各电磁换向阀接线时,应严格按规定的电压和电流值进行配接,并通过操作台上的相应开关反复操作几次,检查动作的灵活性,正确性,可靠性。
2.4安全制动装置上的各阀,应定期检查各个螺钉的链接情况。
2.5检查电磁换向阀的动作情况。
3、定期对转动轴承及摩擦部位润滑均为润滑脂手动润滑方式,用ZG-2或ZG-3钙基润滑脂。
4、勤检查整个机器的工作情况是否正常,发现问题及时解决。
